Property Summary

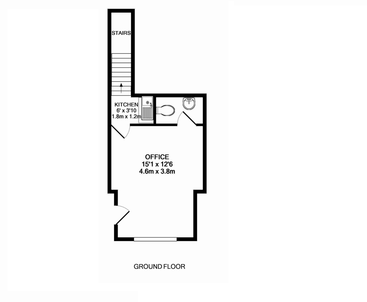
Start or Expand your business/service on the High Street in growing Leiston? Great opportunity to rent Shop/Office/Storage space with updated Cloakroom + Kitchen nook, new flooring and recently decorated. Situated near the cinema amongst various shops, cafes and close to the public car park.

Gallery

Other Details

Submit Enquiry

High Street, Leiston

-